Stadionweg 19, Oranjestad - Sea Breeze Apartment Complex

Oranjestad
For Sale - Commercial
USD 998.000 (AWG 1.776.440)
735 m²
12 bedroom(s)
12 bathroom(s)
Pool

Rental Investment Near Aruba’s Top Beaches in Town
This short-term rental investment opportunity is ideally located just minutes from one of Aruba’s most popular beaches and close to the airport, making it highly attractive to vacationers seeking convenience, accessibility, and proximity to major attractions. The location supports strong year-round tourist demand, a key driver for high occupancy and competitive nightly rates.

Situated on 735 m² of land, this multi-unit property offers significant upside for investors willing to execute a light renovation and furniture upgrade. While the property is operational, it requires a facelift and updated furnishings, allowing a new owner to reposition the asset, increase nightly rates, and maximize returns.

'Generated renderings also added in the photo album for visuals and inspiration'


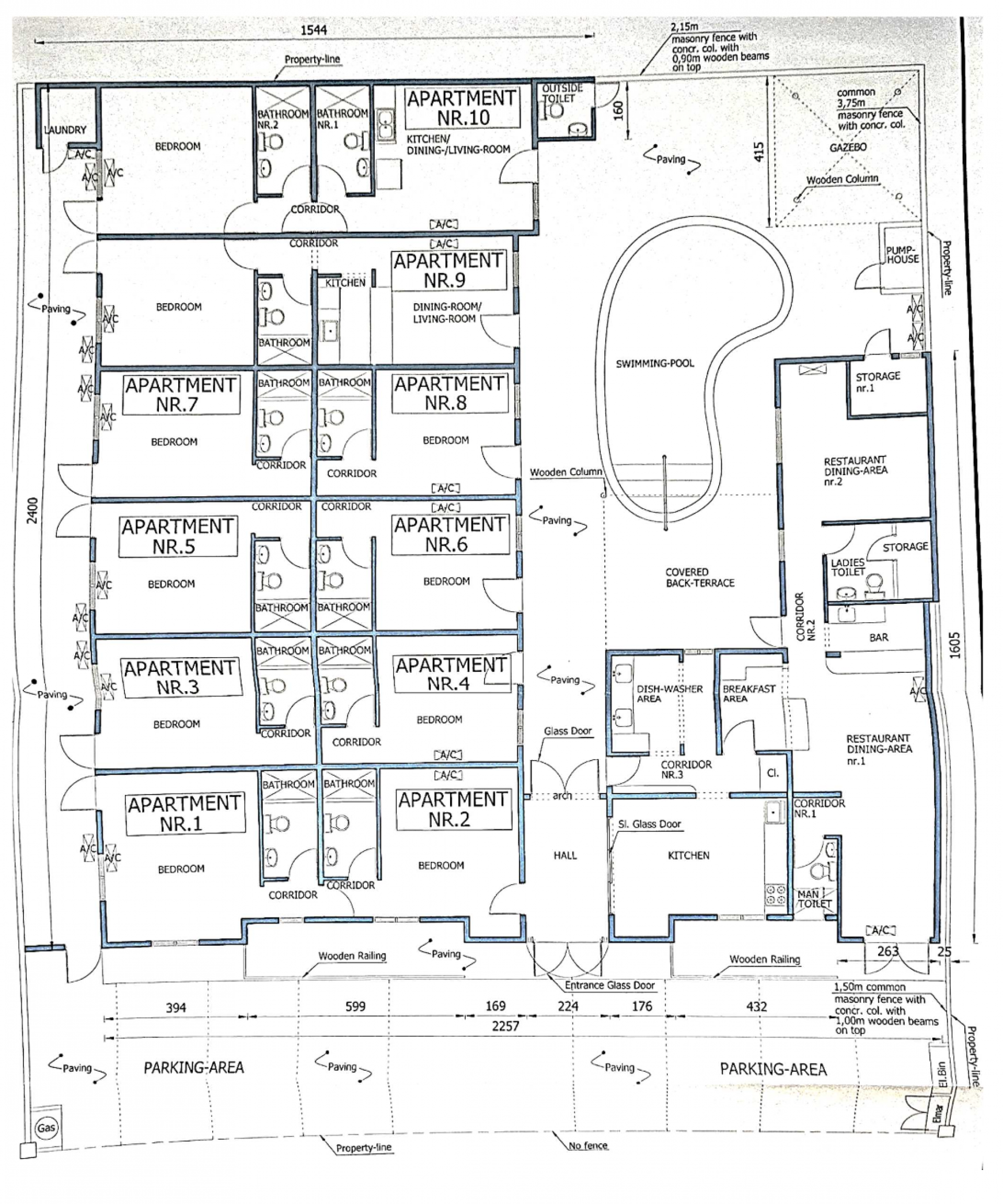
Current configuration includes:

    •    9 rental units

    •    3 one-bedroom apartments

    •    6 studio units

    •    9 on-site parking spaces

    •    Restaurant and dining area, offering potential for an additional revenue stream or guest amenity (kitchen equipment not included)

    •    Large swimming pool with ample surrounding deck space, ideal for guest relaxation and social use

    •    Outdoor bathroom facility for pool and common-area convenience

    •    Gazebo and BBQ area, enhancing the guest experience and increasing booking appeal

    •    Dedicated storage area for maintenance and operational needs

    •    Terrace areas suitable for lounging and entertaining


Flexible Layout With Strong Upside Potential

Investors have two clear value-add strategies:

    1.    Reconfigure the property into 6 larger units, each featuring 2 bedrooms and 1 bathroom, targeting families and higher-spending tourist groups with increased nightly rates; or

    2.    Maintain the existing 9-unit layout, refresh interiors, optimize furnishings, and implement professional short-term rental management to drive higher occupancy and ADR.


With the right upgrades and management strategy, this property has the potential to significantly improve average daily rates, guest reviews, and overall cash flow.

Supported by Aruba’s resilient tourism market and limited availability of well-located multi-unit vacation rental properties, this asset represents a compelling value-add opportunity for investors seeking scalable short-term rental income and long-term appreciation. In walking distance from Surfside Beach and a couple blocks away from he best restaurants of Oranjestad like Barefoot, Reflections Beach & Pinchos.

For information, viewings and to present it's full potential please contact Cado de Lannoy 📧 [email protected] 📱 +2975941420
Note: this property is currently a non exclusive listing

Download brochure
LocationOranjestad
Bedrooms12
Full bathrooms12
Half bathrooms1
Land size735 m² (7.912 Sq Ft)
Build up size432 m² (4.650 Sq Ft)
PoolYes
Pool typeCommunity pool
FurnishedFully Furnished
Alarm system
Hot waterNo
Garage0
Floorplan
Show on map